Property Description
ACCOMMODATION
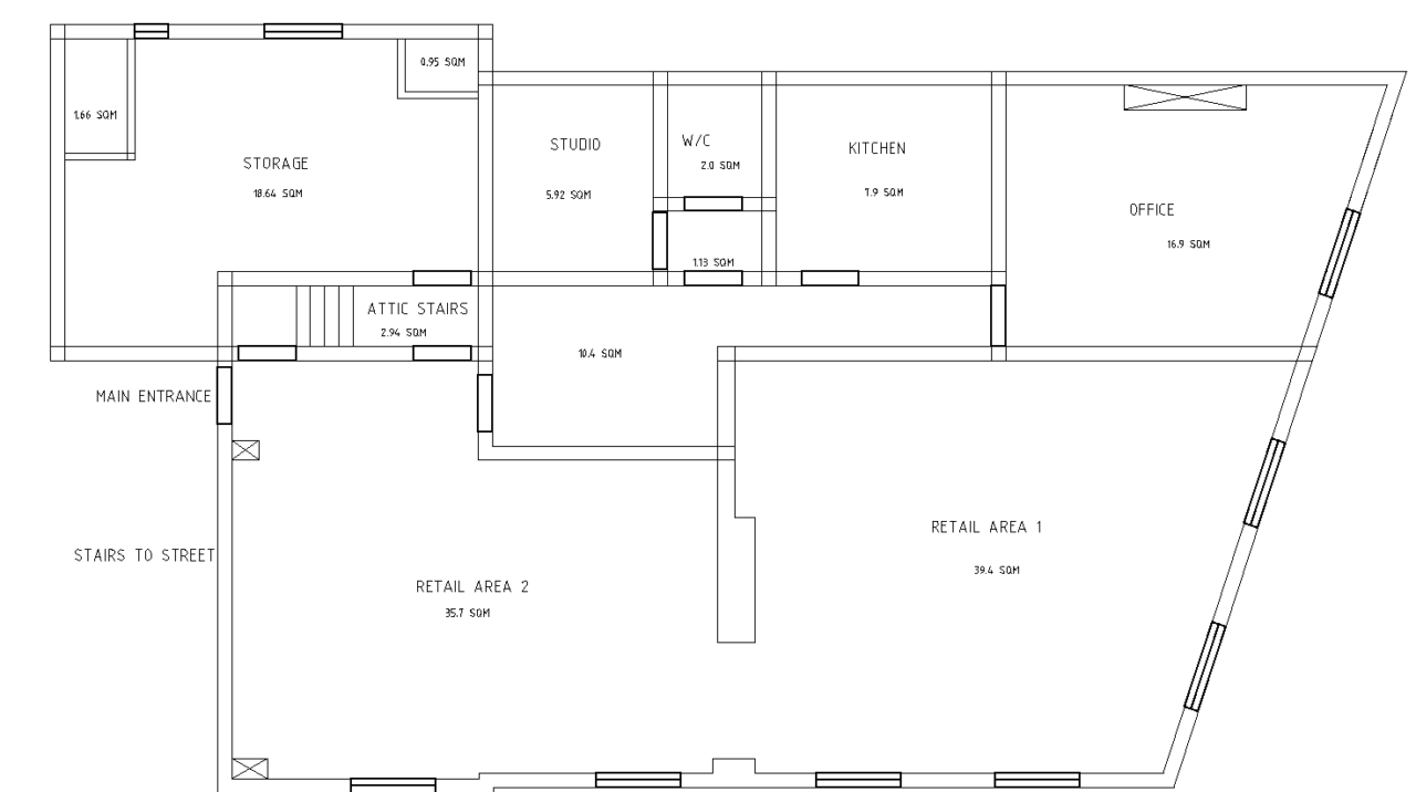
This address is ideal for visibility, prestige and year-round footfall. It benefits from a dedicated entrance from Park Street leading upstairs to approx. 1,000 sq ft of bright and open internal space with generous ceiling heights and dual-aspect windows offering excellent natural light and outstanding street-level prominence. It is ideally suited to becoming offices, a studio or a salon, accessed through a dedicated front door leading up a flight of stairs to the two main rooms measuring 800 square feet. Large windows overlook Lytham Square and Park Street providing excellent visibility from the pavement. There is a corridor leading to a smaller office, store room, W/C and kitchen. The attic space upstairs is available for use as storage. We understand the property has Class E use and is currently used as an online shop but, with planning permission, would be suitable for other uses.
LOCATION
Lytham is a well-established retail destination on the Fylde Coast, known for its strong local economy, affluent customer base, and mix of independent and national retailers. The town benefits from steady footfall, supported by a loyal local population and a regular influx of visitors.
Events such as Lytham Festival and the 1940s Weekend attract thousands of people annually, boosting trade for businesses. The town’s high street is pedestrian-friendly, with good parking and strong public transport links, including rail connections to Blackpool, Preston, and Manchester. Major local employers, including BAE Systems at Warton and several financial services firms, contribute to a stable economy.
With a supportive business community and year-round trade, Lytham provides a solid opportunity for retailers looking to establish or expand their retail business.
OTHER DETAILS
TERMS: The property is available for a new multi-year lease on an internal repairing basis at £18,500 pa.
BUSINESS RATES: Current rateable value (1 April 2023 to present): £11,750 before applying UBR & SBRR* **
**please contact Fylde Borough Council for current, exact figures.
SERVICE CHARGE: The landlord is responsible for all external repairs and the insurance of the property, for which the tenant pays a contribution of £70 per month which is reconciled every six months.
VAT: The property is not elected for VAT.
PROFESSIONAL SERVICES: Each party will be responsible for covering its own professional & legal fees incurred in the transaction. Prospective tenants are responsible for planning enquiries.
Energy Performance Certificate: The EPC is Currently Rated E.
Please note, by submitting an enquiry regarding this property you agree that we may send your details to the landlord of this property so they may contact you in order to answer any questions, or arrange a convenient viewing time. STRICTLY NO AGENT OR SUB-LETTING CALLS.



















