Property Description
FROM £375pcm
Modern Serviced Offices From – All Bills Included – Prime Location Near Mainline Station
We are pleased to offer three fully serviced offices, varying in size to suit a range of business needs. Whether you’re a start-up, a growing team, or an established company looking for a satellite office, these spaces offer the flexibility and convenience to support your operations.
Key Features:
– A choice of three office spaces – perfect for individuals or teams
– All bills included – no hidden costs (utilities, internet, cleaning, and maintenance)
– Fully serviced for ultimate convenience
– Secure access and a professional working environment
– Option for short rolling contracts
Unbeatable Location:
Situated just a stone’s throw from the mainline train station, these offices offer excellent transport links to London and beyond. Ideal for commuters or businesses that require easy access to clients and partners across the region.
Don’t miss the opportunity to secure a professional office space in a highly sought-after location.
Enquire today to arrange a viewing or find out more.
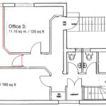
Office 1 – 193 sq ft – £535.00pcm
Office 3 – 120 sq ft – £375.00pcm
Office 4 – 130 sq ft – £400.00pcm
Terms
We currently offer licences ranging from 3-6 months, with the possibility to extend.
Deposit
1 months rent
Option to rent all 3
*Sizes are only approx and advised to confirm upon viewing
Please note, by submitting an enquiry regarding this property you agree that we may send your details to the landlord of this property so they may contact you in order to answer any questions, or arrange a convenient viewing time. STRICTLY NO AGENT OR SUB-LETTING CALLS.



























