Property Description
This is a recently renovated two-double bedroom Victorian terrace in the heart of the “Golden Triangle” (NR2). The property has been updated throughout to a high standard, featuring a full-width rear extension that provides a significantly larger and brighter living space than a typical terrace in this area. The house is well-presented from the street, with a small front garden and an established wisteria.
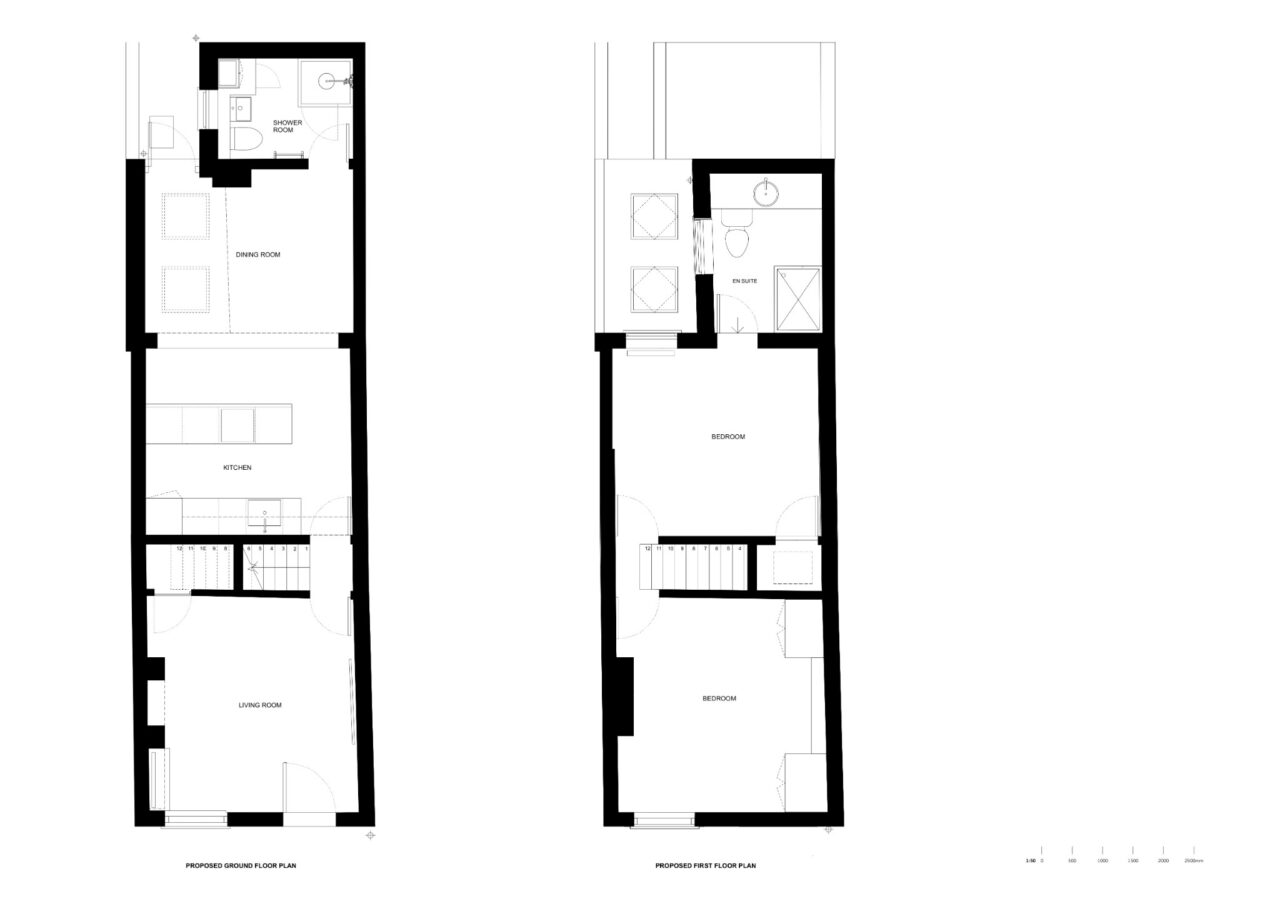
The ground floor centers on a new open-plan kitchen and dining area. The extension features two large skylights that flood the space with natural light. The kitchen is fitted with white stone worktops and a full suite of new integrated appliances. For durability and ease of cleaning, the original wooden floors have been retained and professionally painted throughout the ground floor.
Upstairs, the property offers two double bedrooms. The master bedroom benefits from large built-in wardrobes, providing ample storage. A key feature of the house is the provision of a bathroom on each floor; the downstairs bathroom has been updated with a new shower and a dedicated laundry area for the washing machine, while the upstairs bathroom also features a modern shower suite.
Considerable work has been done to improve the home’s comfort and energy efficiency. All original sash windows have been replaced with new, high-specification double-glazed timber versions. These maintain the traditional Victorian character while ensuring the house is warm and quiet. The property is in pristine condition and ready for immediate occupation following its full refurbishment.
The rear garden includes a decked area for a table and chairs, a storage shed, and a vegetable patch. Situated in a quiet part of the Golden Triangle, the house is moments away from local green spaces and directly opposite a popular independent cafe. It is a 20-minute walk to Norwich Market and the city’s main shopping districts, with a flagship supermarket also within easy reach. Uniquely for this central location, the street offers free on-street parking with no permit requirements.
Energy efficiency rating: TBC
Please note, by submitting an enquiry regarding this property you agree that we may send your details to the landlord of this property so they may contact you in order to answer any questions, or arrange a convenient viewing time. STRICTLY NO AGENT OR SUB-LETTING CALLS.

















































