Property Description
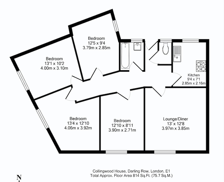
STUDENTS WELCOME 1st floor flat with 4 large bedrooms and a large lounge. A few minutes walk from buses and Whitechapel tube station (District, Hammersmith and Fulham and Elizabeth lines). Adjacent to a major Sainsbury’s store, near shops, market and restaurants.
Utilities (water, electricity, heating) included in the rent.
Student Property for 2026/27
Sorry, No Pets, No Children, No Smokers.
Energy efficiency rating: 78 – Band C
Please note, by submitting an enquiry regarding this property you agree that we may send your details to the landlord of this property so they may contact you in order to answer any questions, or arrange a convenient viewing time. STRICTLY NO AGENT OR SUB-LETTING CALLS.



































