Property Description
Well presented and recently refurbished 2 bedroom end terrace house (unfurnished).
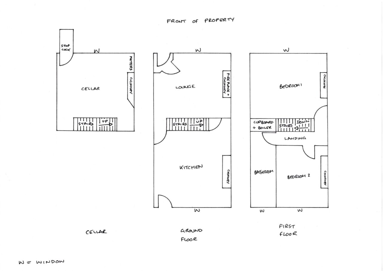
Rooms and sizes as follows:
Lounge with cast iron fireplace / wood surround and glazed vestibule (room size 3.55 x 4.30m).
Combined new kitchen and dining area with spaces available to fit your reduced width dishwasher, fridge freezer and washing machine (room size 5.15 x 4.30m).
Bedroom 1 (room size 3.60 x 4.30m).
Bedroom 2 (room size 3.30 x 2.85m).
Bathroom with electric shower, bath, basin, WC and storage cupboard (room size 1.38 x 4.63m).
Cellar with opening / vented window for humidity control (room size 4.30 x 4.30m).
Paved rear garden with low maintenance borders.
New floor coverings and decoration throughout (cellar excluded).
The property offers a cosy feel throughout with plenty of room for a growing family and is available for occupancy early in February 2026.
Energy efficiency rating: 72, Band – C
Council Tax Band: A
Please note, by submitting an enquiry regarding this property you agree that we may send your details to the landlord of this property so they may contact you in order to answer any questions, or arrange a convenient viewing time. STRICTLY NO AGENT OR SUB-LETTING CALLS.



























